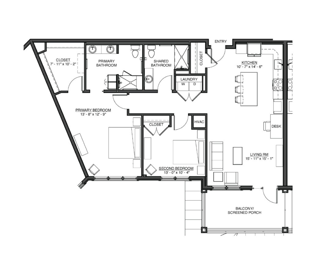
Two-Bedroom Apartment 1,328 sq. ft. (A)

Interested in learning more about this apartment?
Please share your preferred contact information and a Residency Counselor will reach out to you shortly!

Please share your preferred contact information and a Residency Counselor will reach out to you shortly!